 
        
        
      
    
    Blissful living at Birch. 
3,051 Sq. Feet
Step inside Birch and discover your perfect balance of functionality and style. Birch features an open-concept living space designed to maximize breathtaking views from its ridge lot. Upon entry, a sunken foyer provides a private transition from the outside world, creating an immediate sense of seclusion. This home is thoughtfully designed for organization, with a spacious walk-in closet and an expansive walk-in pantry, ensuring that the hub of the home remains clutter-free and effortlessly elegant.
Birch Features
- Open-concept living to take advantage of the view from the ridge lots 
- Sunken foyer for privacy 
- Large walk-in closet and walk-in pantry, keeping the hub of the home organized 
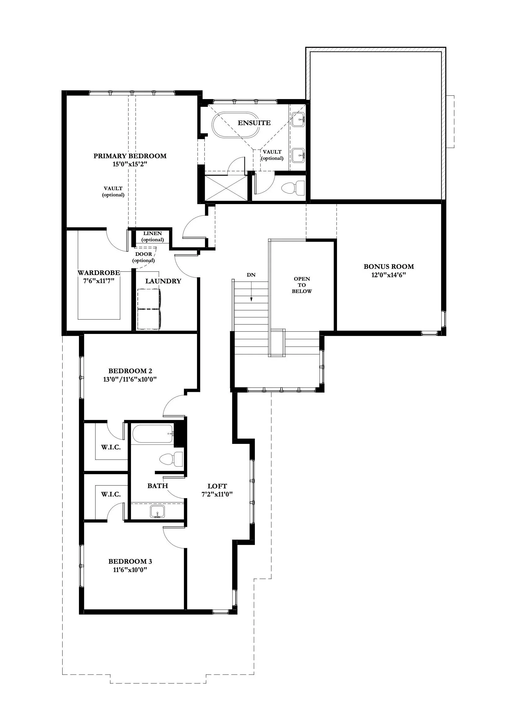
Birch Floor Plan
3,051 Sq. Feet
Main Level | 1,437 Sq. Feet
Upper Level | 1,614 Sq. Feet
Birch Floor Plan Options
Specifications
Interior Features
- Staircase from the main level to the lower level of the home developed 
- Luxury vinyl plank flooring throughout the main level of the home 
- Pre-designed interior selection boards that ensure a simple, seamless process with elegant results 
- Clear view 42” gas fireplace in the family room with custom mantle 
- 3” LED pot lights, low glare 
- LED light bulbs throughout the home 
Exterior Features
- Lux energy saving LoÉ triple pane glass casement & awning windows 
- Smooth finish acrylic stucco or cement board siding for the exterior of your home 
- Natural stone veneer or brick accents on the front of the home 
- 120 Sq. Ft. maintenance-free concrete patio at the back of the home 
- Exposed aggregate front entry stairs & driveway 
- Christmas light switch and soffit plug 
- 8’ tall garage doors 
Kitchen Features
- Designer kitchen package with custom hood fan surround, trash & recycling pullout, pot & pan drawers, and soft close hardware 
- Cabinetry colour selections specifically curated for our Classic Specification 
- Classic series Quartz/Granite countertops in the kitchen with full-height tile backsplash 
- Under-mount sink and Delta pull-down faucet 
- Premium Kitchen Aid stainless steel appliance package including a counter-depth fridge/freezer, built-in oven & microwave, dishwasher, and your choice of gas or Induction cooktop 
Photos reference completed Veranda homes, Legacy interiors, design, and finishings may vary.
 
                         
                       
                       
                       
                       
                       
                       
                      